Kerfishúsveggir
INNBYGGÐAR HPL-HARÐPLASTPLÖTUR Kerfishúsveggir
Með ánægju kynnum við nýjung á markaði fyrir veggklæðningar hönnuð af ALSANIT.
TECHNOWALL er algjörlega frumlegar kerfisklæðningar fyrir veggi, hannaðar með það í huga að auðvelt sé að nálgast innviði sem eru á bak við þá. Varan er hönnuð þannig að hægt er að nálgast innviði annaðhvort með því að færa plötuna úr kerfisrammanum eða í gegnum sérhannaðar opnanlegar hurðir. Hún er ætluð bæði fyrir votrými - útgáfa með HPL, og þurrrými - útgáfa með LPW. Öll kerfiseiningar eru framleiddar í Póllandi í verksmiðju okkar.
TECHNOWALL er í boði í ríkulegu úrvali af HPL og LPW skreytingum. Hægt er að útfæra það með sýnilegum eða ósýnilegum milliplötum á milli klæðninga. Þetta gerir okkur kleift að framleiða sérlega virkar veggi sem bæta við fágun og fela aðgangsaðgerðir að innviðum.
Kerfi okkar fyrir veggklæðningar leyfir hratt og fagurfræðilegt frágang á stórum flötum. Þetta er hið fullkomna lausn fyrir nútíma fjárfestingar og sérstaklega fyrir skrifstofubyggingar, hótel, skóla og stjórnsýslubyggingar.
Fyrir 12 mm þykka HPL plötur hafa íhlutir venjulega brennsluflokk Bs1d0.
Við bjóðum ykkur að hafa samband til að fá frekari upplýsingar og tilboð.
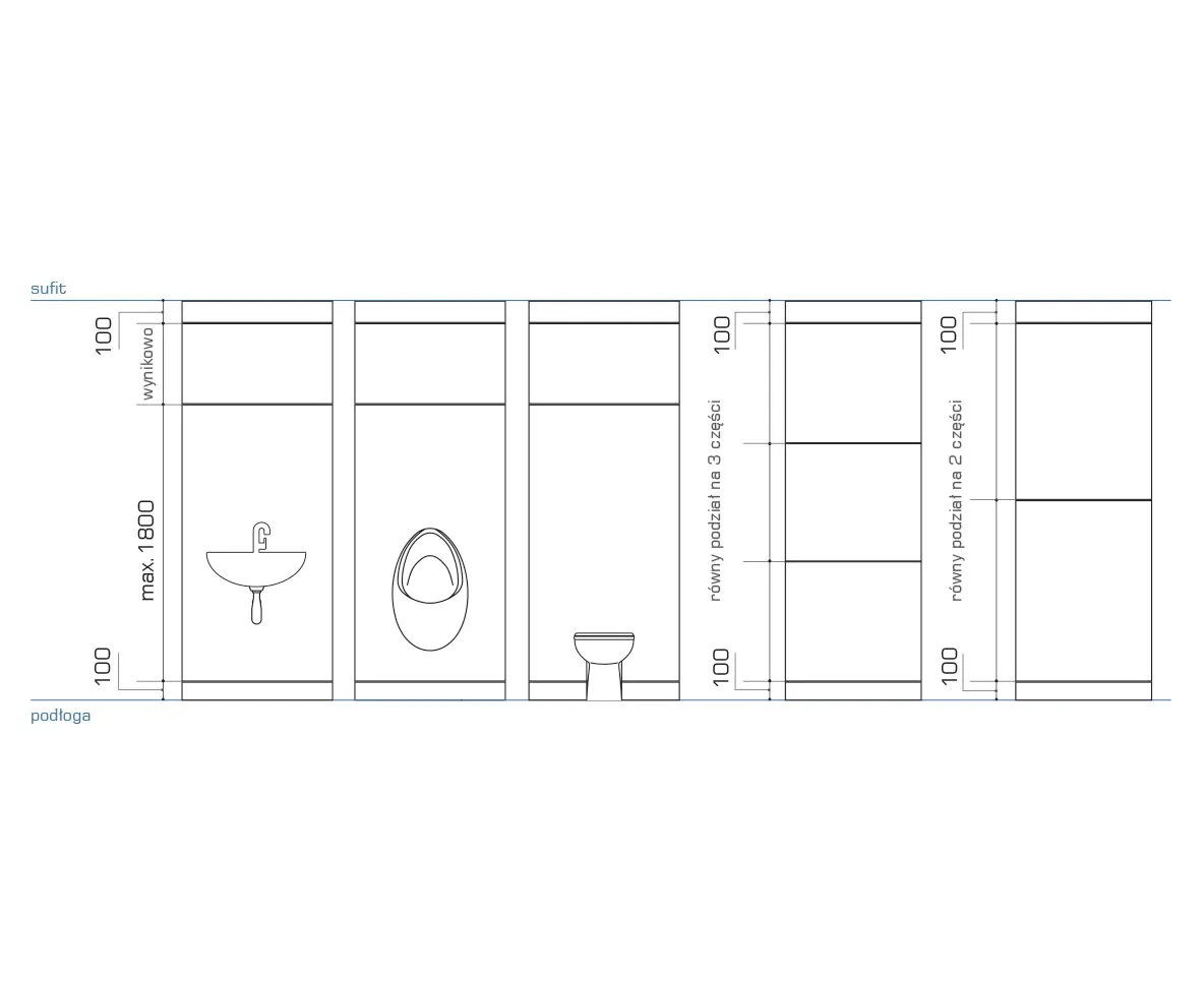
| hæð : | hámark 3000 mm |
| lengd: | lágmark 1000mm |
TECHNOWALL er nútímaleg lausn sem er eingöngu í boði frá ALSANIT.
- kerfi ætlað fyrir þurr og vot rými.
- aðgangur að innviðum á bak við klæðningu,
- fljótur og auðveldur uppsetning,
- fyrir 12 mm plötur, brennsluflokkur Bs1d0,
- fagurfræðilega ánægjuleg veggfrágangur sem krefst ekki frekari fjárfestinga.
Mögulegar plötuþykktir fyrir hverja gerð
| LPW | HPL |
| 18 mm | 10/12mm |



